Confinement DCS
Optima a étudié et édité un APS pour envisager une modification d'une salle de contrôle qui permettrait une requalification en zone de confinement.

Confinement DCS
Confinement DCS
Confinement DCS
Optima a étudié et édité un APS pour envisager une modification d'une salle de contrôle qui permettrait une requalification en zone de confinement.
Confinement DCS
Optima a étudié et édité un APS pour envisager une modification d'une salle de contrôle qui permettrait une requalification en zone de confinement.

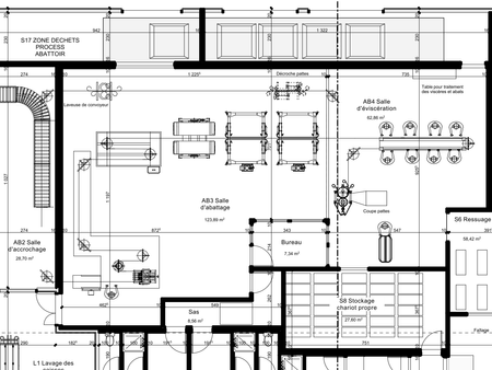
Abattoir avicole
Conception complète et MOE d'un projet de nouvelle filière avicole Calédonienne
La SAS STPA est une jeune filiale (Janvier 2018) de la société PromoSud qui souhaite développer une nouvelle filière avicole avec 12 producteurs, un couvoir, et un abattoir.
OPTIMA a remporté l’appel d’offre pour la maîtrise d’œuvre complète y compris toutes les études techniques pour le projet de l’abattoir et du couvoir de la nouvelle filière avicole.
Le projet consiste en la réalisation d’un abattoir et d’un couvoir associé (mais sur une autre commune).
Le bâtiment principal a une emprise au sol d’environ 1000m² pour l’abattoir et 600 m² pour le couvoir.
La production annuelle au démarrage de l’usine (PHASE 1) sera de 500 tonnes par an , puis 1000 t/an au bout d’un an (PHASE 2) avec une évolution vers 2000 tonnes par an au bout de 2‐3ans (PHASE 3).
L’installation est dimensionnée pour une capacité d’abattage de 1000 poulets par heures.
OPTIMA a :
conduit toutes les études techniques,
édité tous les dossiers devant être instruits par l’ensemble des organismes publics concernés,
élaboré les avants projets et édité les DCE,
mené les consultations et a effectués les analyses de marché jusqu’à l’obtention des projets de marché complet et signés.
Ces taches ont été accompli de manière prioritaire pour respecter le planning très ambitieux de la Province Sud. Nous avons mené l’ensemble du programme en huit mois, ce qui est une grosse performance compte tenu de la complexité des programmes.
Bien que les programmes aient reçu les validations de défiscalisation, le projet est resté en stand-by faute de décision politique. A suivre, en espérant poursuivre comme convenu en phase réalisation.
Galerie du projet












